Hayden Block
Life Span: 1872-TBD
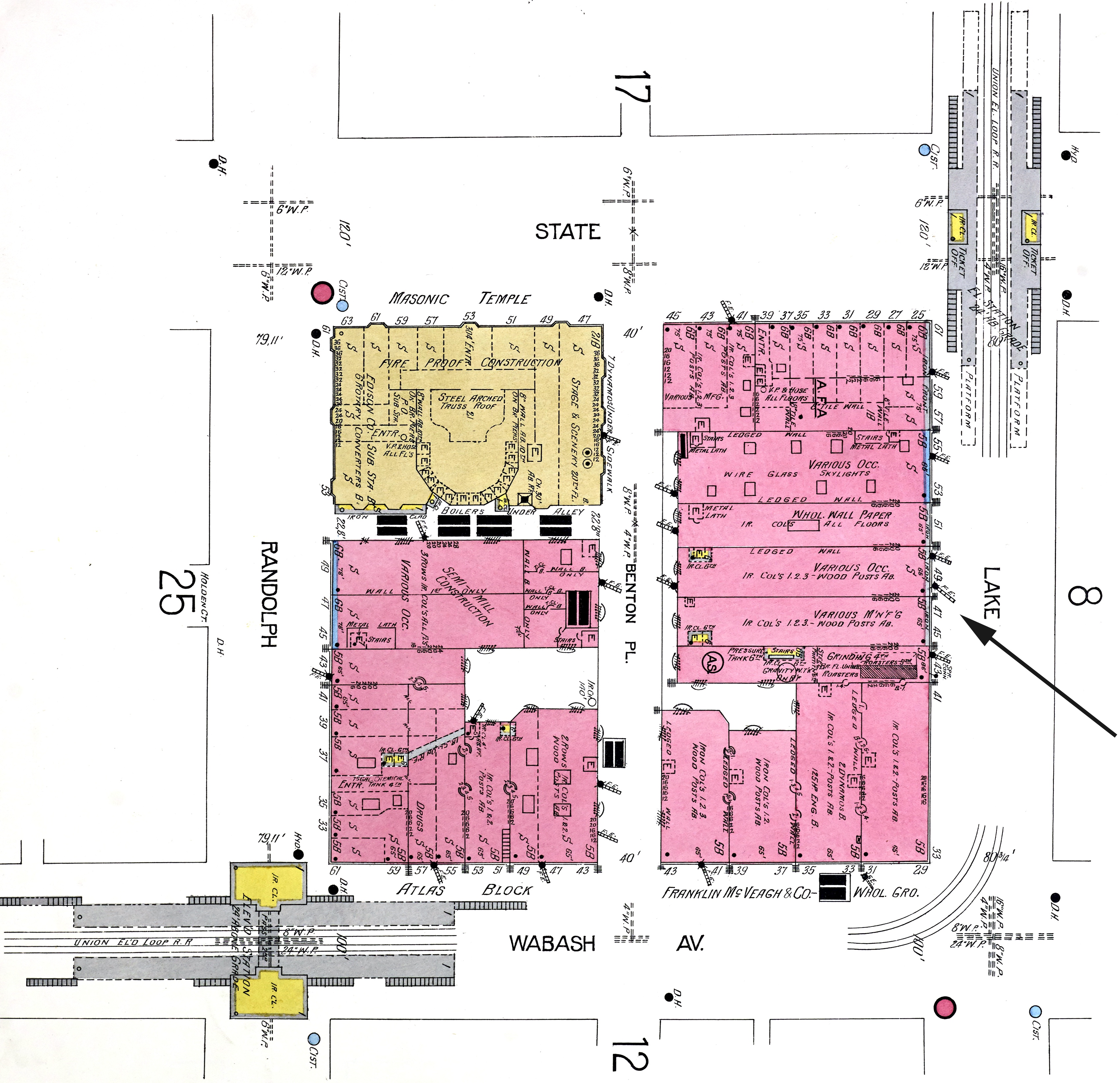
Location: Lake Street, Between State and Wabash
Architect:
- Halpin & Bailey’s City Directory for the Year 1863-64
Hayden, Kay & Co. (Peter Hayden, N. Y., William V. Kay, Chicago, and Pollock Wilson, Cincinnati), saddlery, hardware, 45 & 47 Lake
Edwards’ Annual Directory in the City of Chicago, for 1870
Hayden & Kay (Peter Hayden and William V. Kay), saddlery hardware, leather and carriage goods, 45 and 47 Lake
Edwards’ Annual Directory in the City of Chicago, for 1873
Hayden & Kay (Peter Hayden and W. V. Kay), saddlery hardware, leather and carriage goods, 45 and 47 Lake
Lakeside Annual Directory of the City of Chicago, 1874
Hayden P. & Co. (Peter Hayden, William B. Hayden and Cotten H. Allen) saddlery hardware, 45 and 47 Lake
Lakeside Annual Directory of the City of Chicago, 1880
Hayden P. & Co. (Peter and William B. Hayden and Cotten H. Allen) saddlery, saddlery hardware and turf goods 45 and 47 Lake
Chicago Tribune, May 2, 1875
HAYDEN BLOCK,
built by Peter Hayden, senior of the firm of Hayden, Kay & Co., between State street and Wabash avenue, on Lake street. It is five-stories with basement, pressed brick and stone trimmed. It cost $115,000.
Chicago Tribune, July 18, 1875
Fred Tuttle, four-story and basement brick, 23 feet front, at 45 Lake street.

- Rebuilding of Hayden & Kay store, 1872
Chicago Tribune, March 9, 1885
UNPARALLELED.
An Indestructible, Healthy, and Clean Paving Material Now Obtainable.
The authorities of all cities of the world have searched for the correct paving material for centuries. This great problem is now solved, for the Haydenville Mining and Manufacturing Company of Haydenville, O., have produced a paving block of such great strength, grit, and durability that there is positively no equal to it at any price. We have thoroughly examined these new paving, blocks, “which were patented Oct. 7, 18S4,” and in addition to finding them as above stated, we ascertained the cost of paving a street with them is very little more than doing the same with the destructible and unhealthy wooden blocks. These new paving-blocks are adapted to paving streets, stables, walks, barns, dairy-yards, etc. They are composed of superior fire-clay, vitrified as hard as granite. They are uniform in size and make the smoothest and most compact pavement possible to be laid. Property-owners, city and town officers, and ail interested in correct, healthy, and permanent pavement are invited to examine this modus operandi at the present office of the company in Chicago, at 45 and 47 Lake street, where Mr. Albert Hayden will take pleasure in showing the material, etc., etc..
Chicago Tribune, April 8, 1888
THE OBITUARY RECORD.
P. Hayden, the Manufacturer.
The death of Mr. Peter Hayden at New York yesterday recalls many events of local interest in the career of a remarkable businessman. Mr. Hayden was a native of Haydenville, Mass., and was 82 years old when he died. At the age of 19 years he began to manufacture saddlery hardware in a small way, having no resources except his own skill and industry. At that time all goods of that character were imported. The business of the young man grew extensively, and, removing from Auburn, N. Y., to Columbus, O, he was soon at the head of a great manufacturing establishment. One of the largest branches of the Columbus house was soon located in Chicago, the firm being Gurnee & Hayden, Walter S. Gurnee being the senior partner. Subsequently Mr. Gurnee sold his interest and the firm became Hayden & Kay. The place of business was then as now Nos. 45 and 47 Lake street. Subsequently Hayden became the sole owner of the house.
Mr. Hayden’s remarkable energy was illustrated here after the great fire. The buildings in which he conducted his business were burned, and twenty-four hours later he arrived from New York, put a force of men at work clearing away the débris, and before the fire had run its course had his new buildings well under way.
While Mr. Hayden has had extensive interests here he was never a resident of Chicago. He lived for a time at Columbus, O., but returned thence to New York, where he has since resided. He has five children, one of whom, Mr. Albert Hayden, resides at No. 310 Michigan avenue and represents the Western interests of the vast estate of his father, estimated at $25,000,000 and embracing the following houses: P. Hayden, President, headquarters No. 79 Beekman street, New York; P. Hayden, manufacturer and importer saddlery hardware, Newark, New Jersey; P. Hayden, brass and silver rolling mill, Bloomfield, New Jersey; Hayden and Boyd saddlery Hardware, Auburn, New York; Hayden & Lewis Co., saddlery hardware, Los Angeles, Cal.; the P. Hayden Saddlery Hardware Co., Architectural Works, Columbus, O.: the P. Hayden saddlery Hardware Co., factory, Columbus, O: the P. Hayden Saddlery store, Chicago; The P. Hayden Saddlery Hardware Co. store, St. Lous; the P. Hayden Saddlery Hardware Company store, Detroit; the P. Hayden Saddlery Hardware Company, rock elm hame factory, Muskegon, Mich.; the Haydenville Mining & Manufacturing Company, sewer-pipe and fire-rooting materials, factory, Haydenville, O.; the Haydenville Mining & and Manufacturing Company, sewer-pipe fire-proofing materials, yard, Columbus; the Haydenville Mining & Manufacturing Company, sewer-pipe and fire-proofing materials, yard, Chicago; the Haydenville Mining and Manufacturing Company, general store, Haydenville, O,: P. Hayden & Sons, coal, Columbus; Hayden & Baker, iron, Columbus; P. Hayden & Co., bank, Columbus.
The funeral will be held Tuesday. Mr. Albert Hayden left yesterday for New York and his family last night.

- Hayden & Kay
Pre-Fire Advertisements

- Hayden Block
Robinson Fire Map
1886

- Hayden Block
Sanborn Fire Map
1906
Leave a Reply